
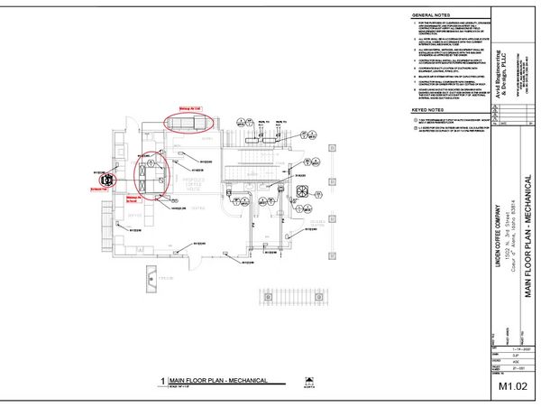
Mechanical design drawings for the Linden Coffee Company are essential blueprints for constructing and assembling coffee production equipment. They cover key aspects of mechanical engineering, ensuring efficient production, high-quality standards, and clear guidelines for assembly and maintenance.

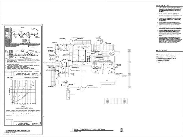
Linden Coffee’s plumbing design prioritizes efficiency with detailed drawings for pipes, fixtures, and drainage. It ensures a reliable water supply for equipment like espresso machines and sinks while addressing wastewater management and accessibility. This thoughtful approach enhances both functionality and the customer experience.

For Highlands Grill Addition, our goal is to ensure that the new space integrates seamlessly with existing systems while meeting safety, efficiency, and comfort standards. Proper mechanical designs also take into account zoning for temperature control and maximizing energy efficiency to adhere to modern building codes and sustainability practices.

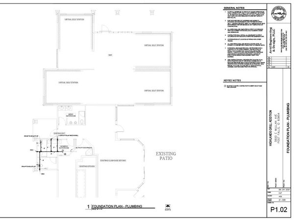
Plumbing design for an addition involves planning the layout and installation of pipes, fixtures, and drainage systems to ensure they integrate seamlessly with the existing plumbing infrastructure. Key considerations include: Assessment of Existing Systems, Code Compliance, Fixture Placement, Drainage and Venting, Water Supply, Accessibility and Maintenance. By addressing these factors, the plumbing design can effectively support the new addition while ensuring reliability and efficiency.